Conveyancing Drawings

Clear, compliant conveyancing drawings that make property registration and sales straightforward for residential developments.

Development Conveyancing Drawings Package

At M2 Consulting, we provide comprehensive conveyancing drawing packages tailored for new build residential developments. Our plans are prepared to land registry compliant standards and drawn to meet the requirements of the developer and solicitor, ensuring every stage of the legal process can run smoothly. Using detailed site layouts, we produce full development plans and individual plot drawings, delivering clear and accurate documentation that supports efficient property registration and sales.

By combining technical precision with a client-focused approach, we make complex conveyancing requirements straightforward and reliable.

Why Conveyancing Drawings Are Essential for Large Residential Developments

For national and private housebuilders, conveyancing drawings are a vital component of delivering both large and small scale residential projects. These compliant plans define every plot, boundary, and shared area within a development, ensuring each property can be legally registered and sold without delay.

They provide:

  • Absolute clarity of ownership – accurately setting out the extent of each plot within the wider development.
  • Land registry compliance at scale – reducing the risk of rejected registrations across multiple units.
  • Efficient plot sales – enabling solicitors to process transactions quickly and consistently.
  • Streamlined project delivery – supporting developers in meeting sales targets and completion deadlines.

In short, conveyancing drawings transform complex residential schemes into fully saleable properties, ensuring a smooth path from construction to legal completion.

Do you need conveyancing drawings for your development?

Contact us to discuss how we can assist.

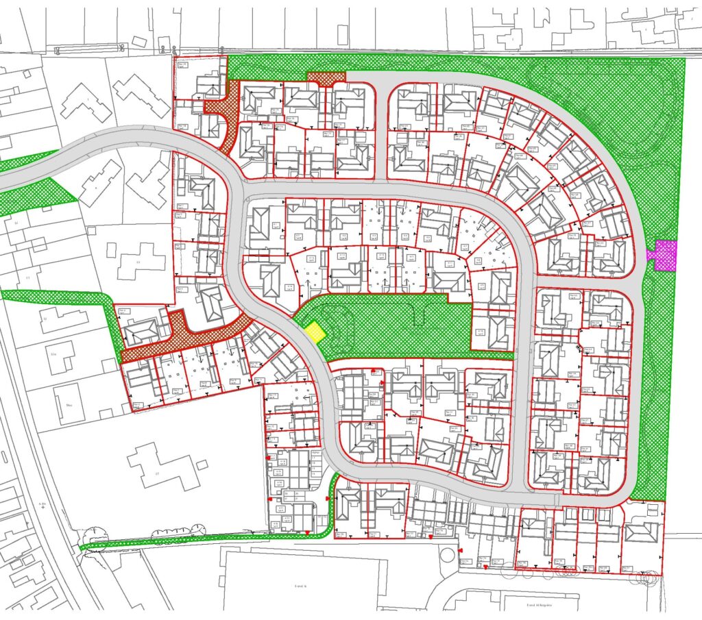
Example Conveyancing Drawing Package

Master Conveyancing Drawing – A comprehensive site-wide plan showing the entire development, including all plots, roads, communal areas, and retained land, providing the legal framework for the conveyancing process.

Highway Adoption Plan – A drawing identifying roads, footpaths, and access routes within the development that are to be adopted and maintained by the local highway authority.

Management Company Drawing – A plan outlining land or communal areas—such as open spaces, landscaped zones, or private roads—that will be retained under the responsibility of a management company.

Housing Association Drawing – A plan defining plots, blocks, or parcels of land allocated to a housing association, ensuring clear separation from private market plots.

Individual Plot Drawings – Detailed plans for each property within the development, clearly showing plot boundaries and their ownership, access, and any associated land or parking spaces, prepared to land registry standards for registration and sale.